外構のお勉強

こんにちは。設計監理部の中原です。
寒暖差がすごく、衣替えのタイミングが難しい時期ですね。
弊社のある鳥取では、この寒暖差でカメムシがたくさん発生しており、ガムテープを持って格闘の日々です・・・
さて、外構のことに関していつもお世話になっています、星さんの外構(エクステリア)に関する研修に参加してきました。
弊社では、「家と庭の一体設計」を行っており、外構に関して、詳しくはこちらをご覧いただけたらと思います。
実務で役立つ知識から外構デザインまで、とても学びの多い時間だったので、その内容をブログとしてまとめてみました。
これから外構を考えている方や、同じ業界の方の参考になればうれしいです。
今回の研修では、主に以下のテーマについて学びました。
・外構計画の基本(ゾーニング、動線計画、植栽)
・外構デザインの考え方
・自分の考えを相手に伝えるには?(プレゼン)など
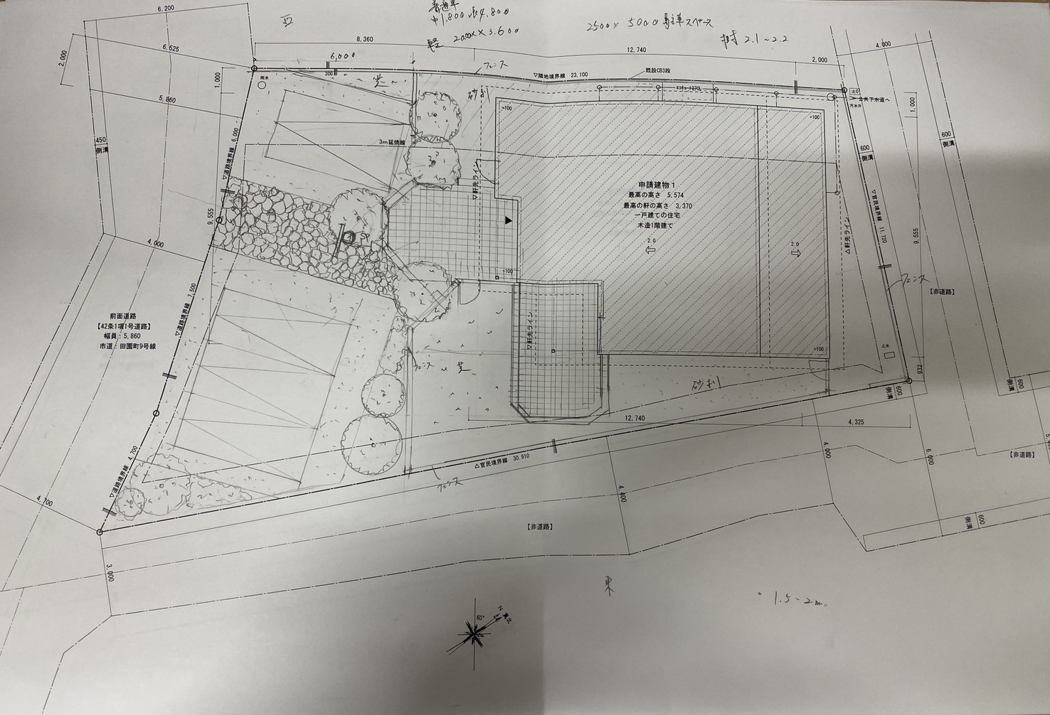
初めて外構のゾーニングを行いましたが、分からないことだらけで全然考えがまとまらず、思考停止していました。

アドバイスをいただきながらなんとか形に。(↑画像の外構計画、ゾーニングを描かせていただきましたが、なかなか難しい・・・)
プランや、設計など、知識と経験の積み重ねだなぁと、すごい痛感しました。
これから外構を考えたい、興味があるけどよくわからない・・・という方に、弊社では定期的にイベントや相談会を行っています。
気になることや聞いてみたいこと、希望などありましたら是非、お庭・エクステリアのプラン相談やリガーデンなど、まずはお気軽にご相談ください!
モデルガーデンの見学予約も承っています。